
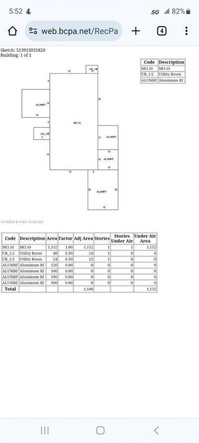
Tranquility sanctuary rare to find. Double wide Manufactured home with 3/2 plus an additional room that can be used at den a/o four bed a/o office a/o buyer choice/desire/need. Good news YOU OWN THE LAND. Refreshed updated renovation: new floor, kitchen, baths, appliances, etc. Freshly exterior paint. No rental restriction. Shed that is used as laundry room, but with space for your tool. Community include club house, gym lake, pool, tennis/basketball courts, play ground. Low HOA ($103/m)
Courtesy of
Agency Name: OD Realty Group Corp.
Agency Phone: 305-593-0022
Agent Name: Rafael Herrera
Presented by
Agent Name: Eyal Ben Shushan
Agent Phone: 954.505.9905
Agency Title: The Keyes Company
Request Info
Send an email with a link to
21760 NW 3rd St, Pembroke Pines, FL 33029.
Email 21760 NW 3rd St, Pembroke Pines, FL 33029
Thank you for your inquiry! As a thank you, we have a Special Mortgage Offer for You.
We would like to provide you a free, no-obligation, home loan pre-approval review.