
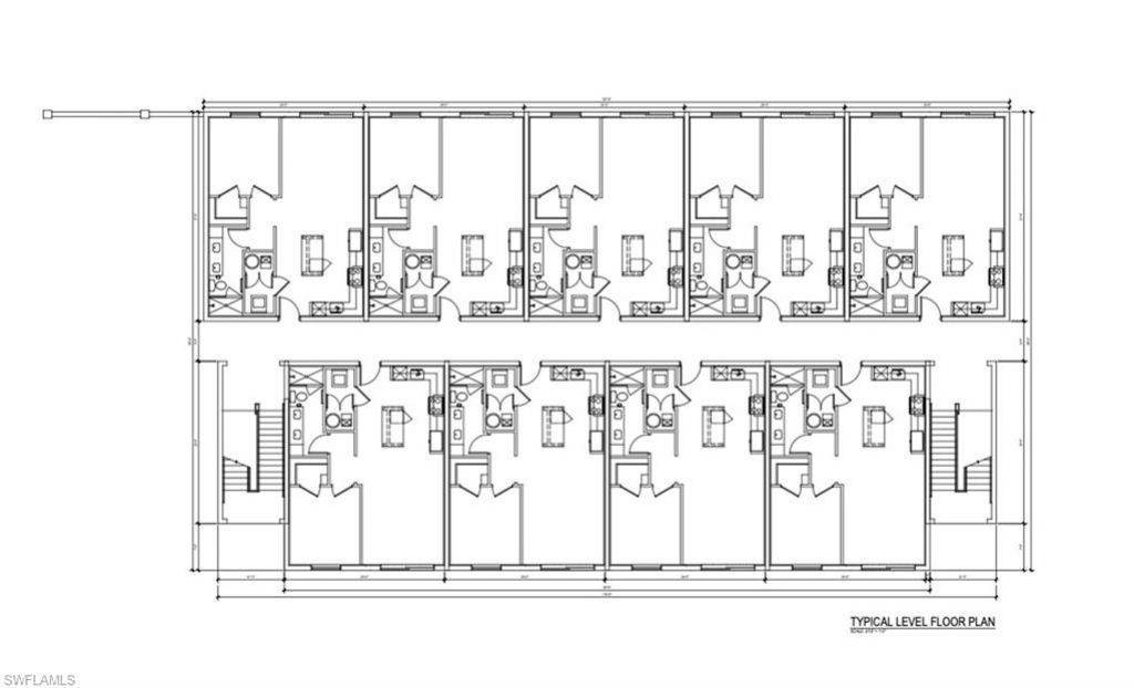
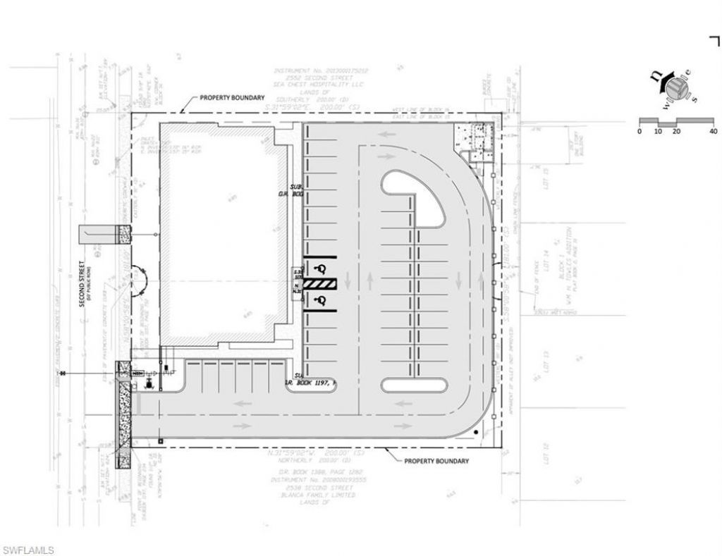
This 0.83-acre downtown Fort Myers site is a prime opportunity for a 27-unit residential development, complete with preliminary design plans, survey, and a Traffic Impact Statement. Current plans are for a 3 story building consisting of 27 one bedroom units. Strategically located near where the City of Fort Myers intends to develop the Hendry St Pedestrian Mall which will connect the John Yarbrough Linear Park via the Midtown Connection to the downtown area. Downtown Fort Myers has the perfect b...This 0.83-acre downtown Fort Myers site is a prime opportunity for a 27-unit residential development, complete with preliminary design plans, survey, and a Traffic Impact Statement. Current plans are for a 3 story building consisting of 27 one bedroom units. Strategically located near where the City of Fort Myers intends to develop the Hendry St Pedestrian Mall which will connect the John Yarbrough Linear Park via the Midtown Connection to the downtown area. Downtown Fort Myers has the perfect blend of old town charm and new development. Close to the Caloosahatchee River, marinas, breweries, library, Sidney & Berne Davis Arts Center, theaters, the Burroughs Home, Dean Park area, shopping, restaurants, nightlife, festivals including monthly Music Walk and Art Walk, and everything else that downtown living has to offer. This vibrant location offers proximity to amenities, airports, I-75, public transportation, and a thriving downtown atmosphere, making it a highly desirable investment for development.
View MoreCourtesy of
Agency Name: Realty Rents and Sales, LLC
Agency Phone: 239-225-1234
Agent Name: Noelle Tietz
Presented by
Agent Name: Eyal Ben Shushan
Agent Phone: 954.505.9905
Agency Title: The Keyes Company
Request Info
Send an email with a link to
2542 And 2546 2nd St, Fort Myers, FL 33901.
Email 2542 And 2546 2nd St, Fort Myers, FL 33901
Thank you for your inquiry! As a thank you, we have a Special Mortgage Offer for You.
We would like to provide you a free, no-obligation, home loan pre-approval review.